École primaire Val-Martin
Laval, QC
Dans le contexte actuel de rareté des terrains vacants et de recherche de solutions alternatives à la construction neuve, le projet de l’école primaire Val-Martin implique la transformation et le réaménagement d’une épicerie abandonnée en un centre d’apprentissage ludique pour jeunes enfants et un centre d’éducation pour adultes. Inspiré par la mission de Schola, une plateforme québécoise visant à délaisser la construction de nouvelles écoles au profit de la rénovation d’écoles déjà existantes au Québec, le projet vise à insuffler un nouvel usage à un bâtiment en fin de vie utile. Gagnant d'un Prix du mérite Canadian Architect, le projet de conversion est salué pour son audace conceptuelle.


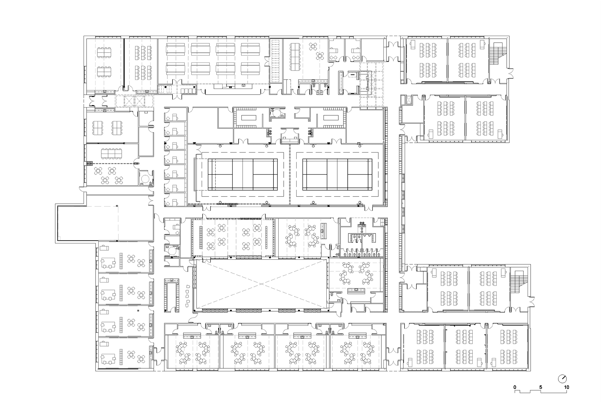
Située dans un quartier résidentiel défavorisé de Laval, sur la Rive-Nord de Montréal, l’école Val-Martin propose une façon novatrice de répondre à l’étalement urbain en évitant de contribuer à la croissance de l’empreinte écologique de la banlieue. La réhabilitation de la structure existante comportant nécessairement des contraintes spatiales, ces dernières se sont révélées l’occasion d’apporter une identité unique au bâtiment.
Un système de maisonnettes à géométrie unique a été développé du fait que la hauteur des plafonds était légèrement inférieure à celle nécessaire à la création de deux niveaux. L’aspect des maisonnettes est d’ailleurs accentué par différentes profondeurs et textures de façade lorsque entrevu de l’extérieur, laissant deviner les contours du bâtiment précédent dans la structure de l’école. Une cour, des espaces verts, un gymnase double de forme irrégulière, une salle polyvalente et une scène rétractable s’ajoutent également au programme des deux établissements scolaires.